
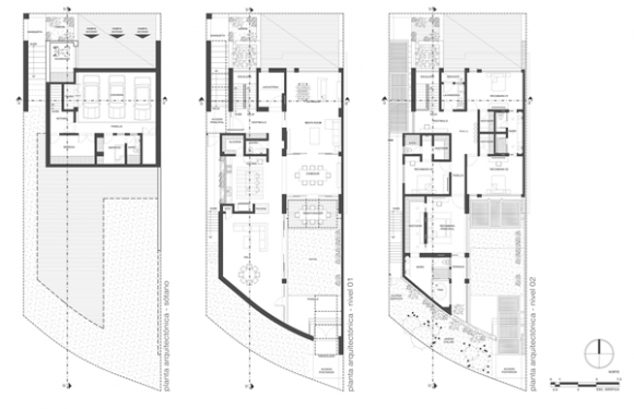
แบบบ้านโมเดิร์นสวย ๆ ผสมผสานวัสดุธรรมชาติกับดีไซน์ทันสมัย ลองไปชมแบบบ้านโมเดิร์นหลังนี้ไว้เป็นไอเดียกันเถอะ บ้านที่ดูหรูหราไม่ได้หมายความว่า จะต้องตกแต่งด้วยชิ้นส่วนที่มีรายละเอียดยิบย่อยเสมอไป และ แบบบ้านโมเดิร์น จาก Imativa Arquitectos ก็ทำให้เห็นความจริงในจุดนี้มากขึ้น เมื่อพวกเขาสร้างสรรค์บ้านโมเดิร์นที่ตกแต่งด้วยสีสันและพื้นผิวที่ดูเรียบง่าย แต่ก็ทำให้เห็นว่าความเรียบง่ายก็ทำให้บ้านดูหรูหราได้เช่นเดียวกัน
ประกาศอสังหาริมทรัพย์ใหม่ บ้าน บ้าน รายการล่าสุด บ้านเดี่ยว บ้านเดี่ยว รายการล่าสุด ทาวน์เฮ้าส์ ทาวน์เฮ้าส์ รายการล่าสุด ทาวน์โฮม ทาวน์โฮม รายการล่าสุด คอนโด คอนโด รายการล่าสุด อาคารพาณิชย์ อาคารพาณิชย์ รายการล่าสุด อพาร์ทเม้นท์ อพาร์ทเม้นท์ รายการล่าสุด สำนักงาน สำนักงาน รายการล่าสุด โฮมออฟฟิศ โฮมออฟฟิศ รายการล่าสุด ธุรกิจ ธุรกิจ รายการล่าสุด โรงงาน โรงงาน รายการล่าสุด คลังสินค้า คลังสินค้า รายการล่าสุด โกดัง โกดัง รายการล่าสุด ที่ดิน ที่ดิน รายการล่าสุด ลงประกาศฟรี ผู้รับเหมา รายการล่าสุด ผู้รับเหมา ลงประกาศฟรี ผู้รับเหมา ข่าวประชาสัมพันธ์ รายการล่าสุด ข่าวประชาสัมพันธ์ พรีวิวโครงการใหม่ รายการล่าสุด พรีวิวโครงการใหม่ ตกแต่งที่อยู่อาศัย รายการล่าสุด ตกแต่งที่อยู่อาศัย สาระควรรู้ ที่อยู่อาศัย รายการล่าสุด สาระควรรู้ ที่อยู่อาศัย ฮวงจุ้ย ที่อยู่อาศัย รายการล่าสุด ฮวงจุ้ย ที่อยู่อาศัย สินเชื่อ ที่อยู่อาศัย รายการล่าสุด สินเชื่อ ที่อยู่อาศัย