รีโนเวททาวน์เฮ้าส์ 3 ชั้น อายุ 10 ปี ให้ออกมาสวยเช้งเหมือนบ้านใหม่สุดหรู

ขอขอบคุณข้อมูลและภาพประกอบจาก คุณ leksons สมาชิกเว็บไซต์พันทิปดอทคอม
รีโนเวททาวน์เฮ้าส์ 3 ชั้น อายุกว่า 10 ปี ให้ออกมาสวยเช้ง เป็นบ้านใหม่สุดหรู จะออกมาเป็นอย่างไรลองไปติดตามการรีโนเวททาวน์เฮ้าส์หลังนี้กัน
บ้านหลังเก่าที่ปล่อยทิ้งร้างมานาน สภาพการใช้งานย่อมต้องเก่าและเสื่อมโทรมไปตามกาลเวลา หากอยากให้กลับมาสวยเช้งเหมือนบ้านใหม่อีกครั้ง คงต้องถึงเวลารีโนเวทกันหน่อย วันนี้กระปุกดอทคอมจึงมีตัวอย่างเด็ด ๆ ของการ รีโนเวททาวน์เฮ้าส์ จาก คุณ leksons สมาชิกเว็บไซต์พันทิปดอทคอม มาฝากให้ได้อึ้งกับความสวยงามหลังการรีโนเวทไปพร้อม ๆ กันค่ะ จะสวยแค่ไหนไปชมได้เลย
เปลี่ยน Townhouse 3 ชั้นเก่า ๆ ให้เป็น Townhouse กึ่ง Condo โดย คุณ leksons

ผมซื้อบ้านหลังนี้เมื่อเกือบ 10 ปีที่ผ่านมา ที่ซื้อเพราะเป็นโครงการของคนรู้จักกัน ทั้ง ๆ ที่ใจอยากได้โครงการที่มีมาตรฐานดี ๆ กว่านี้ และแถมหลังนี้คือหลังสุดท้าย จากทั้งหมด 14 ห้อง ที่ขายไม่ได้เพราะมันอยู่ในสุด แต่ผมเห็นว่ามันมีพื้นที่ด้านข้างเลยซื้อไว้ เผื่อลูกมาเรียนที่ กทม.จะได้มาอยู่ที่นี่ อีกอย่างทำเลเกษตร-นวมินทร์ ก็เป็นทำเลที่ใช้ได้


พอดีเมื่อปีที่ผ่านมา (ปี 2556) ลูกชายผมสอบเข้ามหาวิทยาลัยที่ กทม. ได้ ผมเลยตัดสินใจว่า จะ Renovate บ้านหลังนี้ใหม่


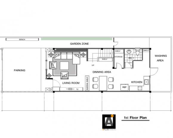
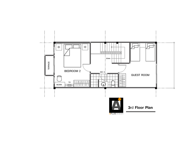
บ้านหลังนี้เป็น ทาวน์เฮ้าส์ 3 ชั้น พื้นที่ 35 ตารางวา ผมตั้งใจออกแบบให้เป็นแบบ Condo stlye คือเข้าไปอยู่แล้วมีความรู้สึกว่าไม่ได้อยู่ทาวน์เฮ้าส์ ผมจัดแบ่งให้มี..

ห้องรับแขก

ห้องทานข้าว

ครัว

ส่วนซักล้าง

ห้องนอน 3 ห้อง

ห้องน้ำ 3 ห้อง

และก็สวนที่เป็นสวนเล็ก ๆ ข้างบ้าน

ชั้นสอง


ชั้นสาม

ผมใช้เวลาจัดการกับโครงสร้างหลัก เช่น ท่อน้ำทิ้ง ท่อน้ำดี ระบบสายไฟ ทุบ และกั้นผนังใหม่หมด ใช้เวลาประมาณ 4 เดือน ที่ล่าช้าเพราะว่า วันศุกร์ เสาร์ อาทิตย์ ช่างไม่สามารถทำงานได้ เนื่องจากเกรงใจข้างบ้านติดกัน ซึ่งเขาจะได้ยินเสียงทุบผนัง เสียงเจาะ เสียงเลาะกระเบื้อง อยู่ตลอดเวลา

หลังจากโครงสร้างหลักเสร็จลง ก็ทำการกรีดผนัง วางระบบไฟฟ้าในบ้านทั้งหมด

ทำการปรับทัศนียภาพข้างบ้าน เพื่อจัดสวน

ส่วนภาพในก็ทำการทำฝ้า และกรุผนังใหม่

งานภายในและภายนอกทำไปพร้อม ๆ กัน กินเวลาอีก 3 เดือนกว่า ๆ

ขั้นตอนท้าย ๆ คือ การทำสีพื้นบันได ติดวอลเปเปอร์ ติดตั้งไฟทั้งหมด ติดสวิตช์ ปลั๊ก และติดตั้งแอร์

ขั้นตอนสุดท้าย คือติดตั้งเฟอร์นิเจอร์หลัก ติดตั้งครัว และทำการใส่เฟอร์นิเจอร์ลอยตัวทั้งหมด

ผมใช้เวลาในการทำบ้านหลังนี้ทั้งหมด 9 เดือน ถึงจะสามารถเข้าอยู่ได้

ให้หลัง 9 เดือน บ้านผมก็ออกมาเป็นหน้าตาแบบนี้
ผมใช้งบประมาณในการ Renovate ประมาณ 1.3 ล้านบาท หวังว่าคงจะเป็นประโยชน์กับเพื่อน ๆ พี่ ๆ เผื่อจะเป็นแนวทางในการปรับปรุงบ้าน นะครับ มีอะไรจะแนะนำก็บอกได้นะครับ ขอบคุณครับ ผมเป็นมัณฑนากรอะครับ เลยออกแบบเองไม่มีค่าใช้จ่าย ไม่ได้เขียนแบบละเอียดใช้เวลาว่าง ๆ มาคุมงานเอง เลยงานช้าอะครับ
ขอบคุณข้อมูลจาก กระปุกดอทคอม, พันทิปดอทคอม