
รีวิวแต่งคอนโดเล็ก ๆ ขนาด 32 ตารางเมตร ในราคาเบา ๆ กับการตกแต่งแบบสบาย ๆ เรียบง่ายที่น่าอยู่ไม่เบา เอาเป็นว่าไปชมการแต่งคอนโดไอเดียนี้กันเลยดีกว่า
แค่ค่าผ่อนคอนโดอย่างเดียวก็ทำเอาหลายคนกระเป๋าฟีบแล้ว จะจ้างช่างเข้ามาช่วยตกแต่งทั้งทีก็คิดแล้วคิดอีก เพราะมีค่าใช้จ่ายเยอะอยู่เหมือนกัน วันนี้ก็เลยขอนำรีวิวตกแต่งคอนโดที่เจ้าของเป็นคนลงมือเอง ทั้งหาไอเดียและตกแต่งจากฝีมือของ คุณ thechicooper สมาชิกเว็บไซต์พันทิปดอทคอม มาฝากกัน เผื่อใครจะเก็บไปเป็นไอเดียสำหรับตกแต่งคอนโดของตัวเองกันบ้าง
แต่งคอนโด 32 ตร.ม. ราคาสบายกระเป๋า โดย คุณ thechicooper
ก่อนอื่นเลยต้องขอออกตัวก่อนเนื่องจากเป็นกระทู้สนทนากระทู้แรก เพราะก่อนที่จะเริ่มแต่งคอนโดจริงจังได้มีการตามล่าหาอ่านกระทู้เกี่ยวกับแต่งบ้าน แต่งคอนโดเยอะพอสมควร เลยมีความคิดว่าเราควรจะมาแชร์ประสบการณ์ให้ผู้ที่กำลังจะแต่งคอนโดอ่านบ้าง คงจะดีไม่น้อย
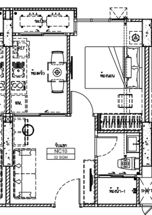
เริ่มจากแปลนห้องก่อนเลยแล้วกัน เป็นห้องขนาดกำลังน่ารักอยู่ที่ 32 ตารางเมตร
วิวจากระเบียงห้อง วันที่ฟ้าครึ้มและวันที่ฟ้าใส
ห้องน้ำ
ห้องครัว
ห้องนอน
มองจากประตูห้องเข้าไป
หลังจากที่ได้ทำการค้นคว้าหาแหล่งเฟอร์นิเจอร์ที่ถูกใจและราคาถูก ก็ค้นพบว่า "อิเกีย" สามารถตอบโจทย์ได้ดีที่สุด และนี่เป็นเพียงแค่เศษเสี้ยวหนึ่งเท่านั้น
เริ่มจากห้องรับแขก
กล่องใส่รองเท้าแบบ 3 ชั้นสามารถใส่ได้ 6 คู่ราคา 1,290 บาทกับชั้นวางทีวี 449 บาท และลืมบอกไปว่าเปลี่ยนสีผนังห้องจากสีขาวเป็นสีเทาด้วยค่ะ จะได้ไม่ดูเรียบจนเกินไป
ส่วนผนังอีกด้านหนึ่งของห้องรับแขกมีช่องเสาโผล่มาด้วย ก็เลยคิดว่าคงต้องหาโซฟาที่สามารถวางได้พอดีกับช่องนั้น
โซฟาขนาด 2 คนนั่งกำลังสบายจากอิเกียราคา 1,990 บาท
โต๊ะสีขาวอิเกียราคา 690 บาท
ตู้จากอิเกีย (ที่เหมือนตู้เสื้อผ้า) แต่เอามาใช้เป็นตู้เก็บของ ตู้ใบนี้ราคาแค่ 2,490 บาท
กระจกเงาอิเกียขนาด 30x30 เซนติเมตร 4 แผ่น ราคา 199 บาท
พรมซื้อจากงานเฟอร์นิเจอร์ที่ศูนย์สิริกิติ์ ราคาประมาณพันกว่าบาท
มาดูที่ห้องครัวกันบ้างดีกว่า ของตกแต่งมี...
ราวแขวนและถาดวางเครื่องปรุงจากอิเกีย
กระจกสี ราคา 3,000 บาท
ส่วนเครื่องซักผ้าจากงานเฟอร์นิเจอร์ศูนย์สิริกิติ์ราคา 13,900 บาท
ตู้เย็นจาก Lazada ราคา 4,941 บาท
ห้องน้ำไม่ได้ทำอะไรมากค่ะ แค่ซื้อชั้นวางของและติดราวแขวนผ้าเพิ่มนิดหน่อย
ติดราวตากผ้าแบบพับเก็บได้ที่ระเบียง
มาถึงห้องนอนทีเด็ดของเรา มีช่องเว้นไว้ให้สำหรับตู้เสื้อผ้า ตอนแรกคิดว่าจะทำแบบ Built-in แต่หลังจากที่ประเมินราคาแล้ว ถึงกับต้องคิดแผนใหม่กันเลยทีเดียว 555+
และแล้วก็เจอสิ่งที่ต้องการจนได้ นั่นก็คือชั้นเก็บเสื้อผ้าจากอิเกียราคา 5,660 บาท
หลังจากนั้นจ้างช่างทำบานเลื่อน 2 บาน และติดกระจกเงาราคา 7,500 บาท
ต่อไปจะเป็นส่วนที่เรียกว่าทีเด็ดจริง ๆ ค่ะ เป็นงานชิ้นใหญ่ที่สุดแล้วนั่นก็คือ หัวเตียง นั่นเอง
วันที่รอคอยก็มาถึง ช่างมีการเข้ามาวัดหน้างานและคุยรายละเอียดไปแล้วก่อนหน้านี้ค่ะ หลังจากนั้นก็ไปทำชิ้นส่วนมาจากโรงงานและยกมาเป็นชิ้นมาประกอบที่หน้างานค่ะ
อีกวันหนึ่งช่างนำกระจกเงามาติดให้ เลยให้ช่างช่วยติดหลอดไฟห้อยลงมาจากฝ้าให้เลย แต่ส่วนนี้มีค่าใช้จ่ายเพิ่มเติมค่ะ
ส่วนนี้เอาไว้สำหรับวางของเล็ก ๆ น้อย ๆ หรือมือถือ เพื่อความสะดวกและประหยัดพื้นที่โดยไม่ต้องมีโต๊ะข้างเตียง ด้านนึงเป็นสวิตช์เปิด-ปิดไฟหัวเตียง ส่วนอีกด้านนึงจะเป็นปลั๊กไว้สำหรับชาร์จมือถือค่ะ
ผ้าม่านเป็นม่านที่สั่งซื้อในงานเฟอร์นิเจอร์ที่ศูนย์สิริกิติ์ ราคา 5,900 บาท ราคารวมทั้งม่านทึบและม่านโปร่งแล้วค่ะ
เตียงพร้อมที่นอนแถมหมอน 2 ใบ ซื้อในงานเฟอร์นิเจอร์ที่ศูนย์สิริกิติ์ราคา 9,900 บาท และบุหัวเตียงด้วยนวมสีเทาอ่อน ๆ
เรียบร้อยแล้วไม่รอช้า จัดการปูเตียงและจัดหมอนให้สวยงามก็เสร็จสมบูรณ์
ใช้ระยะเวลา 1 เดือนในการตกแต่ง หาซื้อของ เฟอร์นิเจอร์และเครื่องใช้ไฟฟ้า งบที่ใช้ไปทั้งหมดคำนวณคร่าว ๆ ไม่น่าจะเกิน 120,000 บาท ซึ่งถือว่าเป็นที่น่าพอใจอย่างยิ่ง
ขอบคุณที่เข้ามารับชมค่ะ หวังว่าคงเป็นประโยชน์กับท่านอื่น ๆ นะคะ