
คอนโดใหม่ ระดับ Super Luxury ใจกลางเมือง ใกล้ BTS ชิดลม เพียง 280 เมตร
"28 ชิดลม" คอนโด High Rise ระดับ Super Luxury พร้อมกรรมสิทธิ์แบบ Free Hold ออกแบบภายใต้แนวคิด Urban Oasis ใจกลางเมือง รายล้อมด้วยสิ่งอำนวยความสะดวกครบครัน เพียง 280 เมตร จาก BTS ชิดลม
ราคาเริ่ม 14.5 ล้านบาท*

IT’S A CHOICE, NOT AN OPTION เลือก คอนโด ชิดลม บนทำเลที่ดีที่สุดของกรุงเทพมหานคร พร้อมกับพบนิยามใหม่ของที่อยู่อาศัย ที่ได้รวมความหรูหรา และ ธรรมชาติเอาไว้ด้วยกันอย่างสมบูรณ์แบบที่ คอนโด ชิดลม 28 Chidlom คอนโดมิเนียม ลักชัวรี่ ใหม่ ที่ได้ผ่านกระบวนการคิดสร้างสรรค์ เริ่มตั้งแต่ในเรื่องการดีไซน์ ที่ทุกๆ ส่วนประกอบได้ถูกดีไซน์ออกมาเพื่อตอบสนองไลฟ์สไตล์คนเมืองรุ่นใหม่ ที่ไม่หยุดแค่คำว่าดี แต่ต้องดีที่สุด เพื่อให้ คอนโด ชิดลม 28 Childlom นั้น เป็นโครงการที่ดีที่สุดในย่านชิดลม

Units Type
โครงการนี้มีห้องให้เลือกดังนี้
- Studio 33 ตร.ม.
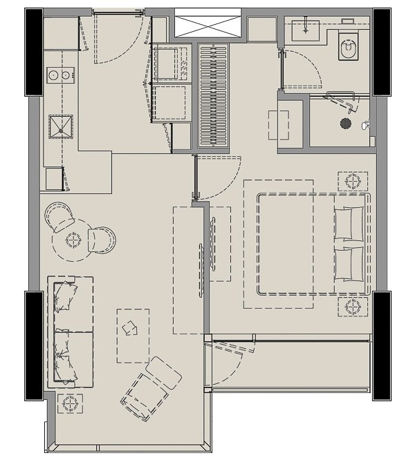
- 1 Bedroom 40 – 50 ตร.ม.
- 2 Bedroom 69 – 91 ตร.ม.
- 3 Bedroom 120 – 200 ตร.ม.
- Simplex Penthouse 104 ตร.ม.
- Duplex 1 Bedroom 50 ตร.ม.
- Duplex Penthouse 190 ตร.ม.

แปลนห้อง 1 Bedroom 40 – 50 ตร.ม.

แปลนห้อง 2 Bedroom 69 – 91 ตร.ม.
THE JEWEL BOX FAÇADE
มุมมองใหม่ของการดีไซน์ ด้วยการออกแบบ Facade ที่สร้างเอกลักษณ์เฉพาะให้กับโครงการราวกับกล่องอัญมณี เพราะนี่คือสถาปัตยกรรมที่พลิกโฉมหน้าใหม่ให้กรุงเทพมหานคร ทำให้ คอนโด ชิดลม 28 Chidlom กลายเป็นแลนด์มาร์กที่โดดเด่นที่สุดในย่านชิดลมทั้งยังทำให้มุมมองจากภายในรับทัศนียภาพเต็มตา ด้วยหน้าต่างบานใหญ่ที่สูงถึง 3-3.1 เมตร เพิ่มทัศนวิสัยที่กว้างกว่า แต่ก็ยังคงความสามารถในการป้องกันเสียงรบกวน และ ความร้อนจากภายนอกเอาไว้ได้อย่างไร้ที่ติ
อีกระดับของพื้นที่ในการใช้ชีวิต
ความพิถีพิถันในงานดีไซน์ที่ยกระดับพื้นที่ใช้ชีวิตภายในคอนโด ชิดลม 28 Childlom ทำให้ทุกยูนิตมีพื้นที่ใช้สอยได้อย่างลงตัว โปร่งสบายกว่าด้วยเพดานที่สูงถึง 3-3.1 เมตร เปิดรับแสงธรรมชาติได้เต็มที่ ด้วยหน้าต่างบานใหญ่เต็มบาน ที่สามารถปกป้องคุณจากเสียงรบกวน และ ความร้อนจากภายนอกเอาไว้ได้อย่างดีเยี่ยม ด้วยเหตุผลที่ว่าความเป็นส่วนตัว และ ความสะดวกสบายของผู้พักอาศัย คือ สิ่งที่สำคัญที่สุดในการออกแบบโครงการ ลงตัวกับทุกไลฟ์สไตล์ ด้วยยูนิตที่มีขนาดหลากหลาย เริ่มตั้งแต่ 1 Bedroom ถึง 3 Bedroom โดยยูนิตขนาด 2 และ 3 Bedroom ส่วนใหญ่นั้น จะเป็น Cornered Unit หรือเป็นห้องหน้ากว้าง เช่นเดียวกันกับยูนิตพิเศษแบบ Penthouse ที่ถูกจัดให้อยู่ในบริเวณชั้นที่สูงกว่า เพื่อเปิดรับวิวเมืองกรุงที่สวยงามด้านล่างได้อย่างเต็มมุมมอง
ทุกๆ รายละเอียดที่ไม่เคยถูกมองข้าม
การตกแต่งที่ออกแบบให้ทุกยูนิตนั้น มีพื้นที่และสิ่งอำนวยความสะดวกครบครันเพื่อตอบสนองไลฟ์สไตล์ที่สมบูรณ์แบบ พร้อมสำหรับการเข้าอยู่อาศัย ด้วยการคัดสรรวัสดุชั้นดีในการรังสรรค์งานศิลปะสุดเอ็กซ์คลูซีฟ ผ่านการตกแต่งที่สะท้อนให้เห็นถึงรสนิยมเหนือระดับของผู้อาศัย

คลิกดูแผนที่โครงการ"28 ชิดลม"
โครงการตั้งอยู่ในย่านในกลางเมืองติดถนนชิดลม เป็นย่านที่มีที่ดินราคาต่อตารางวาแพงที่สุดในประเทศ โดยรายล้อมไปด้วยห้างสรรพสินค้าชั้นนำ โรงแรม สถานฑูต ศูนย์สุขภาพ ห่างจาก BTS ชิดลมประมาณ 280 ม.
| โครงการ |
28 Chidlom ทเวนตี้เอท ชิดลม |
| เจ้าของโครงการ |
บริษัทเอสซี แอสเสท คอร์ปอเรชั่น จำกัด (มหาชน) | SC ASSET |
| เนื้อที่ทั้งหมด |
ประมาณ 3-0-24 ไร่ |
| จำนวนตึก |
2 อาคาร (The Tower & The Villa) |
| จำนวนชั้น |
- The Tower : 47 ชั้น
- The Villa : 20 ชั้น , ชั้นใต้ดิน 6 ชั้น
|
| จำนวนห้อง |
- The Tower : 243 ยูนิต
- The Villa : 184 ยูนิต
|
| ลักษณะและขนาดห้อง |
- Studio : 33 ตร.ม.
- 1 Bedroom : 40 – 50 ตร.ม.
- 2 Bedrooms : 70 – 75 ตร.ม.
- 3 Bedrooms : 120 – 126 ตร.ม.
- Duplex 1 Bed : 50 ตร.ม.
- Penthouse : 100 – 190 ตร.ม.
|
| จำนวนที่จอดรถ |
ที่จอดรถ 358 คัน ไม่รวมจอดซ้อนคัน |
| โซนทำเล |
ชิดลม |
| ขนส่งสาธารณะ |
- รถไฟฟ้า BTS ชิดลม 280 เมตร
- ท่าเรือชิดลม 250 เมตร
- ทางด่วนเฉลิมมหานคร
|
| ที่ตั้ง |
ถนนชิดลม แขวงลุมพินี เขตปทุมวัน กทม. |
| กำหนดการ |
เปิดลงทะเบียนจอง |
| ปีที่สร้างเสร็จ |
คาดว่าแล้วเสร็จ พ.ค. 2563 |
| ราคา |
เริ่มต้น 14 ล้านบาท* |
| สถานที่สำคัญใกล้เคียง |
- 19 At Chidlom : 30 ม.
- 7-11 : 50 ม.
- Central ชิดลม : 250 ม.
- Mercury Ville : 300 ม.
- Central embassy : 450 ม.
- Smile Square Bangkok : 500 ม.
- Big C ราชดำริ : 550 ม.
- Central World : 600 ม.
- Wave Place : 650 ม.
- Gaysorn Village : 650 ม.
- อัมรินทร์ พลาซ่า : 650 ม.
- The Palladium : 650 ม.
- Park Venture : 700 ม.
- The Platinum Fashion Mall : 750 ม.
- ประตูน้ำ : 850 ม.
- Siam Paragon : 1.3 กม.
- Siam Square One : 1.3 กม.
- Siam Square : 1.4 กม.
- Siam Center : 1.5 กม.
- Siam Discovery : 1.7 กม.
- MBK : 2 กม.
- Robinson อโศก : 2.2 กม.
- Terminal 21 : 2.3 กม.
- All season place : 2.3 กม.
- Century : 3 กม.
- Center One : 3.2 กม.
- Emquartier : 3.3 กม.
- Emporium : 3.3 กม.
- สถานฑูตสวิสเซอร์แลนด์ : 950 ม.
- สถานฑูตเวียดนาม : 1 ม.
- สถานฑูตอเมริกา : 1. กม.
- ร.ร.มาแตร์เดอี : 900 ม.
- จุฬาลงกรณ์มหาวิทยาลัย : 3 กม.
- รพ.ตำรวจ : 850 ม.
- BDMS Wellness Clinic : 1 กม.
- รพ.บำรุงราษฎร์ : 1.4 กม.
- BTS ชิดลม : 280 ม.
- BTS เพลินจิต : 650 ม.
- สวนลุมพินี : 1.4 กม.
- สวนเบญจสิริ : 3.1 กม.
|
| สิ่งอำนวยความสะดวก |
- Lobby
- สระว่ายน้ำ
- สระว่ายน้ำเด็ก
- ฟิตเนส 2 ชั้น
- Heated Spa Pool
- Steam , Sauna
- พื้นที่สีเขียวขนาดใหญ่
- สวนพักผ่อน
- ระบบจอดรถอัตโนมัติ
- Access Card Control
- ระบบรักษาความปลอดภัยตลอด 24 ชม.
|
| จุดเด่นของโครงการ |
28 CHIDLOM คอนโด High Rise ระดับ Super Luxury พร้อมกรรมสิทธิ์แบบ Free Hold ออกแบบภายใต้แนวคิด Urban Oasis ใจกลางเมือง รายล้อมด้วยสิ่งอำนวยความสะดวกครบครัน เพียง 280 เมตร จาก BTS ชิดลม
|
| ช่องทางการติดต่อโครงการ |
โทร. 1749 |
คลิกด้านล่างลงทะเบียนรับสิทธิพิเศษ

ลงทะเบียนรับสิทธิพิเศษ
สนใจข้อมูลเพิ่มเติมติดต่อโทร. 1749
*เงื่อนไขเป็นไปตามที่บริษัทฯ กำหนด