
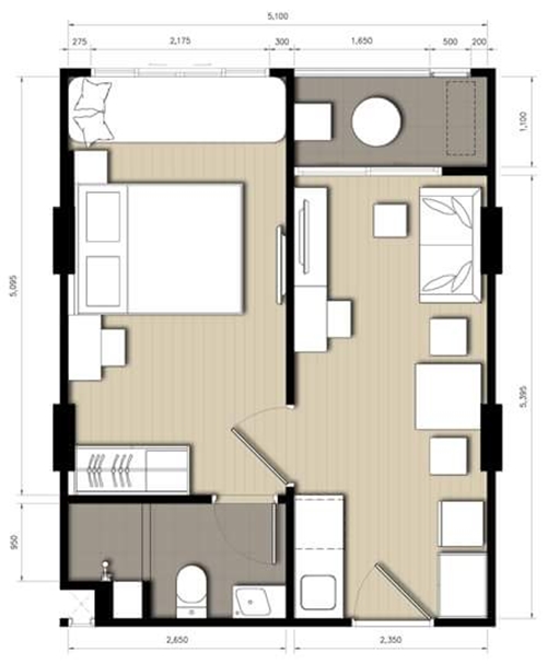
รีวิวแต่งคอนโด 34 ตารางเมตรธรรมดา ให้กลายเป็นโรงแรมส่วนตัว จะออกมาสวยงามน่าพักขนาดไหน ตามไปชมไอเดียแต่งคอนโดแห่งนี้กันเลย
ประกาศอสังหาริมทรัพย์ใหม่ บ้าน บ้าน รายการล่าสุด บ้านเดี่ยว บ้านเดี่ยว รายการล่าสุด ทาวน์เฮ้าส์ ทาวน์เฮ้าส์ รายการล่าสุด ทาวน์โฮม ทาวน์โฮม รายการล่าสุด คอนโด คอนโด รายการล่าสุด อาคารพาณิชย์ อาคารพาณิชย์ รายการล่าสุด อพาร์ทเม้นท์ อพาร์ทเม้นท์ รายการล่าสุด สำนักงาน สำนักงาน รายการล่าสุด โฮมออฟฟิศ โฮมออฟฟิศ รายการล่าสุด ธุรกิจ ธุรกิจ รายการล่าสุด โรงงาน โรงงาน รายการล่าสุด คลังสินค้า คลังสินค้า รายการล่าสุด โกดัง โกดัง รายการล่าสุด ที่ดิน ที่ดิน รายการล่าสุด ลงประกาศฟรี ผู้รับเหมา รายการล่าสุด ผู้รับเหมา ลงประกาศฟรี ผู้รับเหมา ข่าวประชาสัมพันธ์ รายการล่าสุด ข่าวประชาสัมพันธ์ พรีวิวโครงการใหม่ รายการล่าสุด พรีวิวโครงการใหม่ ตกแต่งที่อยู่อาศัย รายการล่าสุด ตกแต่งที่อยู่อาศัย สาระควรรู้ ที่อยู่อาศัย รายการล่าสุด สาระควรรู้ ที่อยู่อาศัย ฮวงจุ้ย ที่อยู่อาศัย รายการล่าสุด ฮวงจุ้ย ที่อยู่อาศัย สินเชื่อ ที่อยู่อาศัย รายการล่าสุด สินเชื่อ ที่อยู่อาศัย